- 建築類別:純住宅
- 裝修狀況:帶裝修
- 開發商:中山市華庚置業有限公司
- 佔地面積:18997.1 平方米
- 單位總數:508
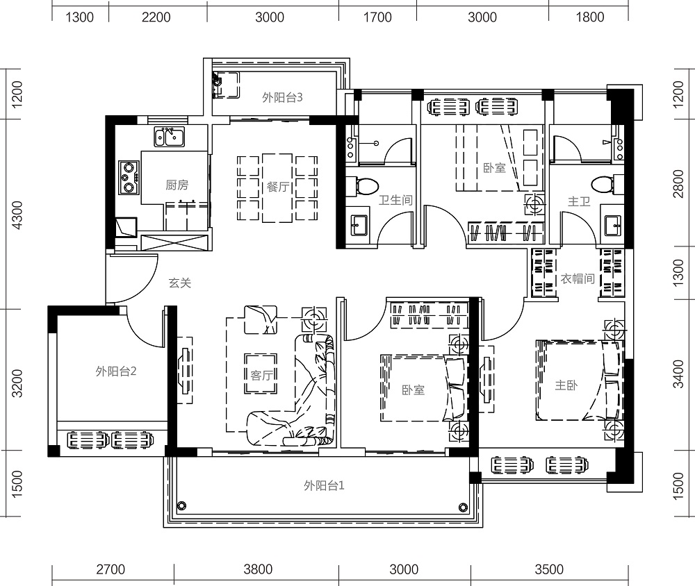
- 面積:99-119㎡
- 間隔:三房至四房
- 入伙時間:2022年12月30日
- 樓盤地址:廣東省中山市富康北路與盛華路交界處
- 價錢:¥218萬
- https://www.youtube.com/embed/Dz0DOJeQjJ4







華髮擁有5大住宅體系“未來系”“城市系”“四季系” “府系”“top系”,首府是華髮高端府系品牌項目,珠海橫琴華髮首府、華髮外灘首府等,皆是區域內人居新標。
華髮首府遵循“6+1” 產品體系以及增值賦能四大維度,將更具匠心的4.0優產品呈現給華髮業主。採用新古典建築立面,大氣尊崇;質造新古典風情園林,全層次繽紛花植與情景空間交融。
華髮物業,國家一級物業管理資質, 榮獲 “ 2019中國物業服務百強企業”第28名、“ 2019中國物業服務百強滿意度領先企業”稱號。以人性化的管理服務、專業化的團隊建設、發達的設備體系等,24小時管家式貼心服務,為您的理想生活保駕護航。






約睇樓
x